
Umbau Wohnhaus in Auleben
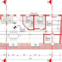
Bei diesem Projekt stellte die Topographie eine große Herausforderung an alle Projektbeteiligten. Gartenseitig ebenerdig, straßenseitig 2 Vollgeschosse - und das Ganze bei einem abknickenden Grundriss. Dennoch wurde die Aufgabe zur Zufriedenheit der Bauherrschaft gelöst. Unsere Leistungen: Gebäudeplanung, Tragwerksplanung, Ausschreibung Rohbau und Bauleitung
Ausführungszeitraum: 2011
Auftraggeber: Privat
Gesamtinvestition: 190.000 EUR
Auftraggeber: Privat
Gesamtinvestition: 190.000 EUR











zu Projekten | Startseite

