
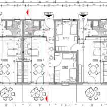
Neubau von 3 Ferienwohnungen
Der Bauherr gab bei uns die Planung eines Neubaues mit 3 intergrierten Ferienwohnungen in Auftrag. Alles sollte ebenerdig und kompakt sein. In kürzester Bauzeit wurde dieses Projekt zur Zufriedenheit der Kundschaft umgesetzt. Unsere Leistungen: Gebäudeplanung, Tragwerksplanung, Ausschreibung und Bauleitung Rohbau
Ausführungszeitraum: 2013
Auftraggeber: Privat
Gesamtinvestition: 275.000 EUR
Auftraggeber: Privat
Gesamtinvestition: 275.000 EUR


















zu Projekten | Startseite