IMG_20171104_153215348 (Web).jpg

Neubau eines EFH in Berga

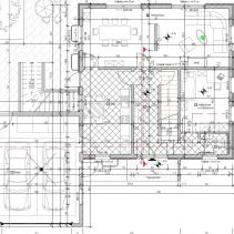
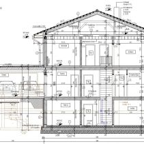
Dieses Einfamilienhaus entstand zum Ende des Jahres 2017 in Berga. Aufgrund des Bemessungswasserstandes wurde auf eine weiße Wanne im Bereich des Kellers zurückgegriffen. Von der Doppelgarage aus, hat man einen direkten Zugang zum Wohnhaus und dem Küchenbereich. Das verkürzt die Verkehrswege erheblich. Unsere Leistungen: Gebäudeplanung, Tragwerksplanung

Ausführungszeitraum: 2017
Auftraggeber: Privat
Gesamtinvestition: 250.000 EUR