Screenshot 2021-11-13 104425.jpg

Umbau eines Wohnhauses in Nordhausen

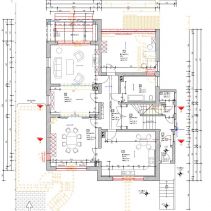
Der Bauherr beauftragte uns mit dem Umbau seines Wohnhauses in Nordhausen. Ziel war es, die Raumhöhe des Kellergeschosses zu vergrößern. Es erfolgte zudem ein Trockenlegung und eine Umgestaltung des gesamten Erdgeschosses.

Leistungen: Genehmigungs- und Ausführungsplanung, Tragwerksplanung, Bauleitung

Ausführungszeitraum: 2018-2019
Auftraggeber: Privat
Gesamtinvestition: -/-