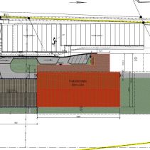
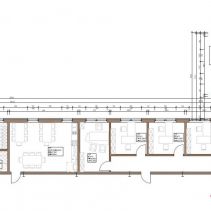
Lageplan.JPG

Entwurf einer Produktionshalle

Entwurf und Kostenberechnung einer neuen Produktionshalle im Landkreis Nordhausen.

Ausführungszeitraum: 2016
Auftraggeber: Privat
Gesamtinvestition: -/-